New publications
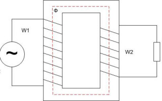
The design and operation of a transformer. Types of cores for transformers. The concept of an autotransformer. The application of transformers. Transforming voltages
What is a coaxial cable, how it is designed. Field of application, pros and cons. Types of coaxial cables. Coaxial cable parameters.
Why rosin is needed for soldering. The main properties and types of rosin. How rosin is produced. Is rosin harmful.
What the piezo effect is. Substances that have a piezo effect. Properties and characteristics of substances with piezo effect. Use of piezo effect.
The structure and types of optrons, what they are. Advantages and disadvantages of optocouplers. Applications of optocouplers and where they are used.
It is not necessary to have professional equipment, industrial stands, etc. to check the condition of the car battery. All necessary and sufficient for a car owner...
How electric current occurs. The direction of the current. Conditions for maintaining electric current in a circuit: free charge carriers, electric field, a third-party force for...
Basic Specifications of 13001 Transistor. Package options and 13001 pinout, analogs. Applications for 13001 transistors.
What is inductance: definition, measurement units, formulas. The phenomenon of self-induction. Series and parallel connection of inductances. Quality factor of an inductor coil. Designs of inductor coils.
Definition of electrical capacity, units and formulas. Calculation of the electrical capacity of capacitors. The use of capacitors their types and designs.
What is a heterodyne, its purpose, description of heterodyne operation and the principle of heterodyne reception. Basic requirements for heterodyne parameters.
Design, circuit diagram and types of field-effect transistors. Unipolar triodes with p-n junction, with isolated gate. Diagrams for switching field-effect transistors.
The structure of inductive sensor and the principle of its operation. Advantages and disadvantages of inductive sensors. The field of application. Practical examples of implementation.
What is a microcircuit. Their purpose and use. Types of modern microcircuits. Shells of microcircuits. Advantages of using microcircuits.
The physical basics in the operation of fiber optic cable. The design and construction of optical fiber and fiber optic line. Advantages and disadvantages of optical cables.
What is an electric battery and how it is constructed. Popular types of batteries: lead-acid, nickel-cadmium, nickel-metal hydride, lithium-ion. The main characteristics of batteries.
Popular Publications
